Category 3 laboratory

The project is providing a dedicated CL3 bio-containment laboratory suite for the Keele University campus.

These specialist laboratories which concentrate on in vitro studies and has been constructed to maximise available space and provide a flexible and modular approach to the operation of the facility taking account of the user’s future expansion requirements.

The laboratory suite is located on the 3rd floor of the Huxley building, all services and associated air handling equipment is located on the rooftop level directly above the facility.

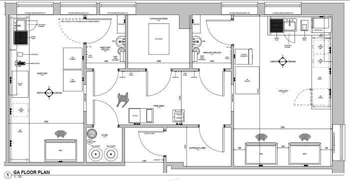
Proposed floor plan

CAT 3 GA FLOOR PLAN


Completed project

CAT 3 lab 2 JPG

 

CAT 3 lab 3 JPG